Future Napier Committee
Open Agenda
|
Meeting Date: |
Thursday 10 February 2022 |
|
Time: |
Following the Sustainable Napier Committee |
|
Venue: |
Via Zoom (Audio Visual Link) |
|
|
Livestreamed via Council’s Facebook site |
|
Committee Members |
Chair: Deputy Mayor Brosnan Members: Mayor Wise, Councillors Boag, Browne, Chrystal, Crown, Mawson, McGrath, Price, Simpson, Tapine, Taylor and Wright |
|
Officer Responsible |
Director City Strategy |
|
Administration |
Governance Team |
|
|
Next Future Napier Committee Meeting Thursday 24 March 2022 |
Future Napier Committee - 10 February 2022 - Open Agenda
ORDER OF BUSINESS
Karakia
Apologies
Nil
Conflicts of interest
Public forum
Nil
Announcements by the Mayor
Announcements by the Chairperson including notification of minor matters not on the agenda
Note: re minor matters only - refer LGOIMA s46A(7A) and Standing Orders s9.13
A meeting may discuss an item that is not on the agenda only if it is a minor matter relating to the general business of the meeting and the Chairperson explains at the beginning of the public part of the meeting that the item will be discussed. However, the meeting may not make a resolution, decision or recommendation about the item, except to refer it to a subsequent meeting for further discussion.
Announcements by the management
Confirmation of minutes
That the Minutes of the Future Napier Committee meeting held on Thursday, 11 November 2021 be taken as a true and accurate record of the meeting............................................. 10
Agenda items
1 Resource Consent Activity Update.............................................................................. 3
Minor matters not on the agenda – discussion (if any)
Public Excluded
Nil
Future Napier Committee - 10 February 2022 - Open Agenda Item 1
1. Resource Consent Activity Update
|
Type of Report: |
Enter Significance of Report |
|
Legal Reference: |
Enter Legal Reference |
|
Document ID: |
1423713 |
|
Reporting Officer/s & Unit: |
Luke Johnson, Team Leader Planning and Compliance |
1.1 Purpose of Report
This report provides an update on recent resource consenting activity. The report is provided for information purposes only, so that there is visibility of major projects and an opportunity for Elected Members to understand the process.
Applications are assessed by delegation through the Resource Management Act (RMA); it is not intended to have application outcome discussions as part of this paper.
This report only contains information which is lodged with Council and is publicly available.
|
The Future Napier Committee: a. Note
the resource consent activity update for period 21 October 2021 to
|
The following is an outline of recent activity regarding applications received by Council for consenting pursuant to the RMA.
Since the November update, the submission of applications to the Resource Consenting team were steady with a 10% increase in submitted applications compared to the same period 12 months earlier (70 applications compared to 63).
The table below outlines the current resource consenting activities in Napier and the status of these for information purposes. Whilst this is not an entire list of all applications currently being assessed or having been determined, they are significant or noteworthy applications of which details are being provided in this report.
Summary Table
|
Address |
Proposal |
Current Status |
Update |
|
200 Waitangi Road, Awatoto |
Earthworks and Disturbance of Soil in HAIL area (NESCS) |
Under Assessment |
Further information provided below |
|
2 Darwin Crescent, Maraenui |
Koha Shed and Recreational Activities |
Under Assessment |
Further information provided below |
|
115 Carlyle Street, Napier |
Expansion of the Existing Car Sales Operation |
Further information requested |
Previously
reported to Future Napier Committee. |
|
9 Church Road, Taradale |
One Lot into Five Lot Subdivision and Multi Unit Development |
Decision Notified |
Approved |
|
100 Eriksen Road, Te Awa |
Proposed One Lot into 16 Lot Subdivision and NES |
Decision Notified |
Approved |
|
5 Waitangi Road, Awatoto |
Multi Unit Development (Industrial) |
Decision Notified |
Approved |
|
113 Fryer Road, Napier |
One Lot into Two Lot Subdivision |
S357 Objection to Decision |
Objection under assessment |
|
16 and 38 Willowbank Avenue, Meeanee |
Proposed lifestyle village |
Appeal process |
Previously reported
to Future Napier Committee. |
|
Kāinga Ora - Construction and Innovation |
|||
|
19 Dinwiddie Avenue, Maraenui |
Three Lot into Five Lot Subdivision and Multi Unit Development |
Further information requested |
Further information provided below |
|
4 Lamb Terrace, Onekawa |
One Lot into Two Lot Subdivision and Multi Unit Development |
Under Assessment |
Further information provided below |
200 Waitangi Road, Awatoto, – Earthworks and Disturbance of Soil in HAIL Area (NESCS)
The subject site is located within the Main Industrial Zone as defined by the Napier District Plan. Ravensdown Napier Works occupies a 16ha area comprising the southern extent of the Main
Industrial Zone at Awatoto. A number of other industrial activities are located immediately to the north of the Site.
The proposal comprises the undertaking of earthworks associated with new water treatment facilities and the construction of a wetland enhancement project (the extent of which is detailed below). A number of reports have been commissioned by the applicant to provide background information, describe the proposal and to investigate and report on the associated environmental, cultural, and economic effects.
|
Location |
Cut (m³) |
Fill (sourced onsite m³) |
Balance (m³) |
|
Bioretention Basin |
768 |
0 |
768 |
|
Clarifier Storage Basin |
1445 |
0 |
1445 |
|
Settling Pond |
504 |
1969 |
1465 |
|
Wetland |
1715 |
586 |
1129 |
|
Total |
4432 |
2555 |
1877 |
Indicative earthworks volumes
The investigations undertaken have provided a comprehensive analysis of the environmental issues associated with the existing and proposed activities at the Ravensdown Napier Works site that are required to be assessed under the RMA.
The application has recently provided a response to Council’s Section 92 request for further information. This response addressed matters relating to earthworks volumes and location, roading, and works within a River Hazard Area.
The assessment of the application is ongoing with a determination anticipated to be made in due course.

Figure 1. Site Plan
2 Darwin Crescent, Maraenui – Koha Shed and Recreational Activities
The subject site is situated within the Main Residential Zone of the Napier District Plan. Residential land bounds the site to the north and west and Bledisloe Road and Darwin Crescent bound the site to the east and south respectively. On the opposing side of Bledisloe Road is a well established suburban commercial precinct.
The proposal involves the placement and use of two shipping containers (one 40ft and one 20ft), onto a vacant residential site. The containers will be utilised for community use as ‘Koha Shed’ storage. ‘Koha Shed’ is a community initiative that provides support to whānau and people in need, through the collection, storage and free redistribution of goods such as clothing, home appliances and other equipment.
Small scale community gardens will also be developed on the site, and small on-site markets will be held for sale of goods from the Koha Shed. Sale of garden produce may be held on occasion. The site will be managed by community volunteers.
The assessment of the application is ongoing with a determination anticipated to be made in due course.

Figure 2. Proposed Koha Shed and Recreational Area

Figure 3. Site Plan

Figure 4. Proposed Koha Shed and Recreational Area
KĀINGA ORA - CONSTRUCTION AND INNOVATION
19 Dinwiddie Avenue, Maraenui – Three into Five Lot Subdivision and Multi Unit Development
The subject site is situated within the Main Residential Zone of the Napier District Plan. The site is bound by main residential land to the north, south and west and Dinwiddie Avenue to the east. A sports park is located on the opposite side of Dinwiddie Avenue.
The three existing dwellings will be retained on subject site as part of the proposal. Two new two-bedroom dwellings are proposed on the site, and each is provided with an open plan kitchen, dining and living area with direct access to the outdoor living space. The site layout is shown in Figure 6 below. Access and egress for proposed Lot 1 will be via Wallis Place, Lots 2 and 3 via Dinwiddie Place and Lots 4 and 5 via Curling Crescent. Each of the existing and proposed dwellings have allowed for a level of causal surveillance of their respective driveways/shared driveways. Sufficient off street parking and manoeuvring is provided within each respective lot.
Council has issued a Section 92 Request for Further Information addressing matters relating to the easements within the Scheme Plan and Three Waters. A response has not yet been received.

Figure 5. Site Plan

Figure 6. Site Layout Figure 7. Subdivision Layout
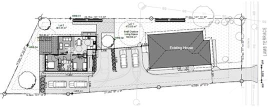
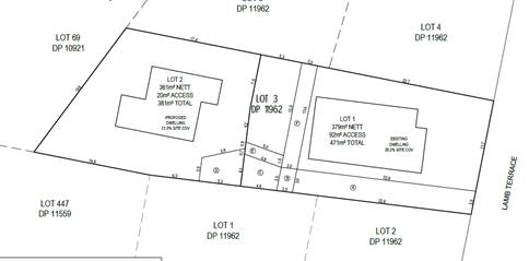
4 Lamb Terrace, Onekawa – One Lot into Two Lot Subdivision and Multi Unit Development
The subject site is located within the Main Residential Zone of the Napier District Plan. The site is relatively level in nature and is surrounded by well established residential properties. The site locates a single dwelling in close proximity to the Lamb Terrace road frontage.
The existing dwelling will be retained as part of the proposal and the new dwelling will be constructed towards the rear of the site. The dwelling has an open plan kitchen, dining and living area with direct access to the outdoor living space. A shared vehicle access is proposed to service the existing and proposed dwellings. Ample off street parking and vehicle manoeuvring has been allowed for in the design of the proposed development. The site layout is shown in Figure 9 below.
The assessment of the application is ongoing with a determination anticipated to be made in due course.

Figure 8. Site Plan

Figure 9. Site Plan

Figure 10. Subdivision Plan
Future Napier Committee - 10 February 2022 - Open Agenda
Future Napier Committee
Open Minutes
|
Meeting Date: |
Thursday 11 November 2021 |
|
Time: |
11.10am – 12.20pm 1.00pm – 2.02pm 2.05pm – 2.50pm (Public Excluded) |
|
Venue |
Large Exhibition Hall |
|
|
Livestreamed via Council’s Facebook site |
|
Present |
Chair: Deputy Mayor Brosnan Members: Mayor Wise, Councillors Boag, Chrystal, Crown, Mawson, McGrath, Price, Simpson, Tapine, Taylor and Wright |
|
In Attendance |
Chief Executive (Steph Rotarangi) Director City Services (Lance Titter) Director City Strategy (Richard Munneke) Director Community Services (Antoinette Campbell) Director Corporate Services (Adele Henderson) via zoom link Director Programme Delivery (Jon Kingsford) Acting Director Infrastructure Services (Debra Stewart) Acting Manager Communications and Marketing (Julia Atkinson) Chief Financial Officer (Caroline Thomson) Team Leader Planning and Compliance (Luke Johnson) Manager Regulatory Solutions (Rachael Horton) Strategic Planning Lead (Fleur Lincoln) Team Leader Policy Planning (Dean Moriarity) Manager City Development (Paulina Wilhelm) Urban Design Lead (Georgina King) Manager Property (Bryan Faulknor) Community Services Programme Manager (Darren Gilles) Catherine Reaburn (Consultant) |
|
Administration |
Governance Advisors (Carolyn Hunt and Anna Eady) |
Karakia
Apologies
|
Councillors Crown / Mawson That the apology from Councillor Browne be accepted. Carried |
Conflicts of interest
Nil
Public forum
David Allan and Mike Halliday, Guthrie Smith Trust displayed a powerpoint presentation (Doc Id 1400380) providing an overview of the aspirations and objectives of the Guthrie Smith Education Centre and Aboretum which is open on Sundays from October to the end of May. Entry to the Arboretum is free, however they value donations which assist with the on-going maintenance of the Arboretum.
Paul Redman and Linda Paterson - Restore our Beacons displayed a powerpoint presentation (Doc Id 1400401) providing background and history of the beacons which were important as major navigational aids for the Port of Napier from the time of their construction in 1906-07 until decommissioned in 1975. They were the first light towers in New Zealand to be constructed in reinforced concrete and the first of their kind to be constructed anywhere in the world.
There have been many attempts to restore the Beacons by various individuals and groups. Positive support has been provided by The Port of Napier; Pāmu (formerly Landcorp); Hawke’s Bay Regional Council; Napier City Council (Heritage Team); The Department of Conservation; Hawke’s Bay Airport Authority; and Heritage Hawke’s Bay.
Contact has been made with Mana Ahuriri who have given verbal support and once their treaty settlement is settled, they will be able to engage formally to see how we can work together.
Mr Redman said it was heartening to see Napier City Council list the beacons as heritage items on the draft district plan and which now means they will be protected from demolition.
It was estimated that the restoration work could be in the vicinity of $500,000 and to this end they would be setting up a Charitable Trust. A fundraising strategy was being developed which included obtaining support from the community and also larger sums from philanthropic entities and charitable funders as well as donations in kind of material and skills.
Mr Redman thanked Fleur Lincoln and the Heritage Team of the Napier City Council for the assistance to date. Mr Redman requested Council assistance in waiving Council fees in regard to resource consenting fees for the restoration of the beacons while they are still able to be restored and to endorse the restoration project.
It was noted that for the process going forward Council could not waive fees however, there may be grants available that could offset these fees.
|
Attachments 1 Powerpoint presentation - Guthrie Smith Tutira (David Allan and Mike Halliday) (Doc Id 1400380) 2 Powerpoint presentation - Save our Beacons (Paul Redman and Linda Paterson) (Doc Id 1400401) |
Announcements by the Mayor
Nil
Announcements by the Chairperson
Nil
Announcements by the management
Nil
Confirmation of minutes
|
Councillors Boag / Chrystal That the Minutes of the meeting held on 30 September 2021 were taken as a true and accurate record of the meeting.
Carried |
Agenda Items
1. Resource Consent Activity Update
|
Type of Report: |
Information |
|
Legal Reference: |
Resource Management Act 1991 |
|
Document ID: |
1278535 |
|
Reporting Officer/s & Unit: |
Luke Johnson, Team Leader Planning and Compliance |
1.1 Purpose of Report
This report provides an update on recent resource consenting activity. The report is provided for information purposes only, so that there is visibility of major projects and an opportunity for elected members to understand the process.
Applications are assessed by delegation through the Resource Management Act (RMA); it is not intended to have application outcome discussions as part of this paper.
This report only contains information which is lodged with Council and is publicly available.
|
At the Meeting The Team Leader Planning and Compliance, Mr Johnson spoke to the report, providing a brief overview and noted that there had been an increase of 33 applications more received than this time last year. Noting that 70% were for residential developments and the remaining applications for industrial and commercial. |
|
Committee's recommendation Councillors Mawson / Crown The Future Napier Committee: a. Note
the resource consent activity update for period 8 September 2021 to
Carried |
2. Amendments to Parking Bylaw
|
Type of Report: |
Legal and Operational |
|
Legal Reference: |
Local Government Act 2002 |
|
Document ID: |
1383552 |
|
Reporting Officer/s & Unit: |
Rachael Horton, Manager Regulatory Solutions |
2.1 Purpose of Report
To recommend changes to the Parking Control Bylaw 2014 to support pay-by-plate payment technology.
|
At the Meeting The Manager Regulatory Solutions, Ms Horton spoke to the report noting that the proposal was to adopt the Bylaw with amendments. The amendments to the Bylaw related to updating the language to accommodate both existing and pay by plate meters with the removal of the term “ticket meter” replaced by “Parking Meter”. Consultation has been undertaken and no submissions were received. There are also no complaints under the Bylaw that would suggest the current setting is not fit for purpose. In response to questions from councillors it was clarified that: · Motorcycles would now be required to pay parking fees regardless of whether the metered space was occupied by one or more motorcycles. · Council staff would take an educational approach for the upgrade, promoting the pay-by-plate to pay for parking. · The public would be informed through officers meeting with community agencies such as Grey Power to talk through the change. · Consideration will be given to the best time to upgrade to minimise disruption to businesses in the CBD. Some areas were more conducive to upgrade during the week and would be undertaken on a sector by sector basis, with the contractors being available after hours to minimise disruption. |
|
Committee's recommendation Councillors Brosnan / Taylor The Future Napier Committee: a. Adopts the Parking Control Bylaw as amended and attached to the agenda report as Attachment 1 (Doc Id 1396100); b. Resolves that all Ticket Metered Zones are now Metered Zones under the Bylaw; b. Determines that the amended Parking Control Bylaw will be effective from the date Council adopts the Bylaw; and c. Determines that the amendments do not give rise to any implications under the New Zealand Bill of Rights Act 1990 and the amended Parking Control Bylaw is the most appropriate way of addressing the implementation of pay-by-plate meters and is the most appropriate form of Bylaw. Carried |
3. Library and Civic Area Plan
|
Type of Report: |
Procedural |
|
Legal Reference: |
Local Government Act 2002 |
|
Document ID: |
1390617 |
|
Reporting Officer/s & Unit: |
Fleur Lincoln, Strategic Planning Lead |
3.1 Purpose of Report
The purpose of this report is to provide an update on the feedback received during the public consultation phase of the Draft Library and Civic Area Plan; to recommend that Council adopt the Library and Civic Area Plan; and to provide information on the next steps of this project.
|
At the Meeting The Strategic Planning Lead, Ms Lincoln advised that the draft Library and Civic Area Plan had been released for public consultation on 20 September 2021 and closed on 15 October 2021. A total of 101 feedback forms had been submitted and all were generally positive of the plan. No substantive changes were made to the plan following this feedback. In response to questions from councillors it was clarified that: · Work was being undertaken on the demolition programme of the existing Library Tower Building to deliver the first stage of the Plan. · In regard to Council Chambers and councillor rooms for democratic services the majority of feedback was against including these in Stage 1 of the Plan. · Although it was noted there had been some confusion in the term “governance” and additional information was provided to the public during the consultation period to what this actually meant, no further comments were made. |
|
Committee's recommendation Councillors Chrystal / Wright The Future Napier Committee: a. Receive the feedback on the Draft Library and Civic Area Plan b. Adopt the Library and Civic Area Plan (Doc Id 1396319)
Carried |
4. Update on Ahuriri Regional Park Project
|
Type of Report: |
Information |
|
Legal Reference: |
N/A |
|
Document ID: |
1390869 |
|
Reporting Officer/s & Unit: |
Fleur Lincoln, Strategic Planning Lead Richard Munneke, Director City Strategy |
4.1 Purpose of Report
The purpose of this report is to update Council on progress made toward what is currently known as the Ahuriri Regional Park project, and to seek the endorsement of Council to confirm the priorities for the future use and development of Lagoon Farm in a way that positions Napier as a leader in climate resilience and city sustainability.
The report also seeks to address how critical partnerships with Hawkes Bay Regional Council (HBRC) and Mana Ahuriri (MA) can be fostered through the stages of park master-planning and implementation.
|
At the Meeting The Chair acknowledged the presence of the General Manager, Biodiversity (Debbie Monahan), Angie Denby (Ahuriri Protection Society) and noted the apologies from Councillor Hinewai Ormsby (HBRC) for this item. The Strategic Planning Lead, Ms Lincoln provided an update on progress made on the Ahuriri Park and sought endorsement of priorities for future use and development of Lagoon Farm. Substantial budget had been allocated in the Council’s and Hawke’s Bay Regional Council’s Long Term Plan and the next steps needed to be clearly programmed.
In response to questions from councillors it was clarified that: · Through the LTP process there were a significant number of interested affected stakeholder partners interested in how Council would proceed with this project. · Legal advice received has questioned whether the project should continue to be called a “Regional Park”. · The Lagoon Farm site legal boundary should be confirmed as the boundary of the park. · The Ahuriri Masterplan was developed at a high level and will be unbundled into focused components on lagoon farm to develop a masterplan into which detailed design will be incorporated at that stage. · The committee endorsed the appointment of a Project Manager as soon as possible. · Investigation is to be undertaken to understand the parcels of land as to the number of hectares that need to be set aside for stormwater polishing and flood detention areas as a priority. · The Project Manager, when appointed will be considering all aspects of the development including Lagoon Farm continuing as a viable working farm and the short term lease of the Blowcart activity and would work with all parties going forward. |
|
Committee's recommendation Councillor Brosnan / Mayor Wise The Future Napier Committee: a. Endorse that the future park to be located at Lagoon Farm be a platform for climate resilience and city sustainability, delivering flood mitigation, stormwater quality, biodiversity and estuarine environment restoration. b. Endorse that the boundary of the park currently known as the Ahuriri Regional Park be confined to the legal boundaries of Lagoon Farm (Lot 1 DP 388211). c. Endorse the preparation of a Masterplan for the park currently known as the Ahuriri Regional Park and the appointment of an independent project manager. d. Endorse Officer’s exploring options for project governance structures for the purpose of endorsing a draft masterplan (including a multi-party Regional Committee), for public consultation to be brought back for Council consideration next year. Carried |
The meeting adjourned for lunch at 12.20pm
and reconvened at 1.00pm
5. Housing Capacity Assessment
|
Type of Report: |
Legal and Operational |
|
Legal Reference: |
Resource Management Act 1991 |
|
Document ID: |
1393075 |
|
Reporting Officer/s & Unit: |
Dean Moriarity, Team Leader Policy Planning |
5.1 Purpose of Report
For Council to:
· receive the first Housing Capacity Assessment Report (HCA) prepared under the National Policy Statement on Urban Development 2020 (NPSUD) and
· note the next steps that need to be undertaken in accordance with the NPSUD to support urban growth.
|
At the Meeting
The Team Leader Policy Planning, Mr Moriarity spoke to the report and displayed a powerpoint presentation (Doc Id 1400459) which provided an overview for the following three items which were all linked to urban growth: · Item 5 - “Housing Capacity Assessment Report (HCA); · Item 6 - “Feedback on Spatial Picture”; and · Item 7 - “Proposed District Plan Notification
Mr Moriarity advised that the Hastings District Council, Napier City Council and Hawke’s Bay Regional Council were required to complete a joint housing assessment to estimate the expected demand and supply of housing in Napier/Hastings over the next 30 years.
Housing Capacity Assessment (HCA) – it was estimated that Napier would need approximately 3500 new dwellings over the next 10 years. Demand for affordable housing is greater than supply.
The HCA identified housing supply and demand, the spatial picture identified how Council could provide residential growth in greenfield and higher intensification areas and the District Plan enabled the growth direction of the spatial picture to be incorporated in the Plan as regulatory zones.
The housing assessment is being presented to all three councils and Hastings District Council has acknowledged a need for 6500 new dwellings in the next ten years.
In response to questions from councillors it was clarified that: · To achieve 3200 houses over the next ten years would require 320 houses per annum noting that development is dependent on economic drivers. Traditionally Napier was delivering 150-170 in depressed times, the figure currently is around 250 however this number is increasing as land becomes available and more houses being built. · It was necessary to have a continual pipeline of land to support housing with infrastructure and setting set the bar high meant it was easlier to slow down development than increase quickly. · Providing affordable housing is not Council’s specific role and it relied on a lot of participants ie social housing providers to leverage off government funding to make housing affordable. A lot of iwi authorities were looking at targeting housing for their own people. · Council can ensure it is not providing impediments in terms of planning provisions that end up constraining affordable housing options. Napier does not have a minimum lot size for subdivision so there is the ability to build small housing. However, there needed to be options available to build terraced housing without building impediments. · Council was trying to create a planning framework that does not only result in a 300m2 house on a 500-600m2 section, which ultimately becomes unaffordable. · Council can only provide the framework to achieve this and make options available and it was up to people to exercise those options and seek help from the social housing providers. · Council’s role is to make it as easy as possible for the right kinds of development. It is not responsible for providing affordable housing or the houses, that is up to the market to provide. · The National Policy Statement Urban Development specifically removes amenity as a reason for refusing intensification areas thereby reducing the ability to refuse consents based on amenity. · Council needs to decide the location of intensification areas which is most beneficial to access public transport and have a framework to manage amenity issues. · Council will need to decide which areas will be put into the District Plan for medium density housing, and compromises may need to be made as there will be impacts on individual properties and owners. · Prioritising heritage areas over medium density areas would be assessed through the spatial picture and structural planning multi-criteria assessment and included in the District Plan for consultation.
|
|
Committee's recommendation Councillors Boag / Simpson
The Future Napier Committee:
a. Receive the first Housing Capacity Assessment Report (HCA) prepared under the National Policy Statement on Urban Development 2020 (NPSUD); b. Note the contents of the HCA and the next steps to fulfil the NPSUD requirements; c. Note the housing bottom lines that will be inserted into the Hawkes Bay Regional Policy Statement and Napier District Plan; and d. Note that the Spatial Picture sets out potential options for where Council can provide sufficient dwellings to meet the housing bottom lines identified in the HCA over the next 30-years.
Carried |
|
Attachments 1 Urban Growth Update Powerpoint presentation - Housing Capacity Assessment, Spatial Picture, Rezoning of Land (Doc Id 1400459) |
6. Feedback on Spatial Picture
|
Type of Report: |
Operational and Procedural |
|
Legal Reference: |
Resource Management Act 1991 |
|
Document ID: |
1393181 |
|
Reporting Officer/s & Unit: |
Dean Moriarity, Team Leader Policy Planning |
6.1 Purpose of Report
For Council to:
· receive and consider the feedback on the Spatial Picture;
· adopt the recommendations based on feedback and amend the Spatial Picture in line with those recommendations; and
· endorse the recommended next steps that need to be undertaken around structure planning, multi criteria analysis on growth areas and potential rezonings in the Proposed District Plan.
|
At the Meeting The Team Leader Policy Planning, Mr Moriarity together with consultant, Ms Reaburn spoke to the report and providing an overview of the feedback on the spatial picture.
In response to questions from councillors it was clarified that: · Concern has been raised by the Hawke’s Bay Regional Council in relation to tsunami risk. Part of the multi-criteria assessment for proposed growth areas would consider this threat including mitigation options. · When officers undertake the high level structure plans part of the exercise will be looking at mitigation options and how to improve evacuation routes which will feed into the multi-criteria analysis. · One big component of high level structure planning process is looking at the infrastructure requirements. Council have the existing 30 year stormwater management plan and as part of the structure planning exercise will look at what additional infrastructure would be needed to be in place to facilitate growth in each of the possible growth areas. This will assess the effects of climate change, increased high intensity rainfall events as part of scope of that work. The multi-criteria analysis would include resilience to flooding effects as one of the criteria. · The high level structural plan is looking at future growth options and there is still an opportunity to look at Council’s existing services and whether in providing for urban growth it can improve infrastructure for existing dwellings with suitable infrastructure and mitigation hazards. · Hastings Placed based plan is a pilot model partnering with Central Government agencies and social housing providers to do place based recognition of the housing needs for different communities and localities. Napier has been trying to do something similar with those government agencies. However it is certainly the basis for discussions with all housing options to try and ensure that where housing goes Council has influence over it and can achieve good amenity outcomes.
· Government has introduced medium density housing for all tier 1 big cities and that is looking at 3 houses of 3 stories height permitted with no resource consent across all residential areas in those cities. They will have no ownership where intensification can be directed. · Napier is not a tier 1 authority it is a tier 2 authority and at the moment still has control over planning and determining the most appropriate locations for intensification. It is very important to commence work on the high level structural planning and get rezoning in the District Plan to demonstrate to Government that Council is on top of it and listening to the policy direction of the National Policy Statement and responding to it. · The risk is if this does not happen Government can, under the proposed Bill introduce those requirements to Tier 2 authorities as well, including Napier. They haven’t yet and Council still has the opportunity to own those decisions.
|
|
Committee's recommendation Councillors Simpson / Tapine The Future Napier Committee: a. Receive and consider the feedback on the Spatial Picture; b. Adopt the recommendations based on feedback and amend the Spatial Picture in line with those recommendations; and c. Endorse the recommended next steps that need to be undertaken around structure planning, multi criteria analysis on growth areas and potential rezonings in the Proposed District Plan. Carried |
7. Proposed District Plan Notification
|
Type of Report: |
Operational and Procedural |
|
Legal Reference: |
Resource Management Act 1991 |
|
Document ID: |
1393846 |
|
Reporting Officer/s & Unit: |
Paulina Wilhelm, Manager City Development |
7.1 Purpose of Report
For Council to confirm the notification date of the Proposed District Plan.
To endorse the proposed notification date of June 2022, noting the work programme necessary to support the notification, and the Regional Spatial Planning context that underpins the plan’s development.
|
At the Meeting The Manager City Development, Ms Wilhelm spoke to the report reiterating the urgency to move forward and progress the feedback received on the spatial plan to develop the proposed District Plan. This would enable Council to formalise the strategic objectives for where and how Napier would grow in the next 10 years.
In response to questions from councillors it was clarified that: · Areas still being worked on in parallel with notification of the proposed district plan are the sites of significance to Māori, which has its own constraints in terms of engagement and is very complex with some sites being on privately owned land and significant natural areas which has some of the same issues. · If the deadline cannot be met for the Proposed District Plan with Iwi, for example then that section can be notified at a later date given that many of those sites are on privately owned land. · The other area outstanding is designation however, it is likely that we will achieve the notification timeline. · The priority is to cater for the future growth of Napier and we would want to have all documents ready by June 2022 accordingly.
|
|
Committee's recommendation Mayor Wise / Councillor Price
The Future Napier Committee: a. Endorse the public notification date of June 2022 of the Draft District Plan as Proposed under Schedule 1, Part 1 section 5 of the Resource Management Act 1991.
Carried |
8. Private Drinking Water Supply Fund Policy
|
Type of Report: |
Operational and Procedural |
|
Legal Reference: |
N/A |
|
Document ID: |
1397885 |
|
Reporting Officer/s & Unit: |
Caroline Thomson, Chief Financial Officer |
8.1 Purpose of Report
The matter for consideration by the Council is the adoption of a new policy (the Private Drinking Water Supply Fund Policy) for a publicly accessible fund to support Private Drinking Water Supply (the Private Drinking Water Supplier Fund).
|
At the Meeting The Chief Financial Officer, Ms Thomson spoke to the report which sought support to create a Private Drinking Water Supply Fund Policy to support the establishment and delivery of the Private Drinking Water Supply Fund. The reason for a Decision of Council is that all four Hawke’s Bay Councils are proposing to open up the fund on 1 December 2021. The four Hawke’s Bay Councils have collaborated on a drinking water supplier project to determine the number and locations of private water suppliers in Hawke’s Bay and to help them understand what the Water Services Act changes mean for them and the communities they supply water to. In response to questions from councillors it was clarified that: · Funding is part of a stimulus package already received and seeking approval distribute fund. If not fully subscribed by April 2022 it can be extended through to June 2022. · The purpose of project is to identify the number of private suppliers and understand its obligation to assess the volume, quality and risks associated with those water suppliers. · The funding is for water suppliers is an incentive to engage on this project. · First to look at information on systems and establish a spatial picture, looking at addresses and contacting those identified as potential private water suppliers for their consent to have a conversation with Council and potentially undertake some work as part of this project. · A drinking water supplier under the Water Services Bill is someone who provides to another party other than their own self water supply. · Identify and classify the different types of water suppliers under the Act it is the obligation on Councils going forward to undertake a risk assessment of that supplier. · The Project is due for completion in March 2022 however, the fund could run through to June 2022 when stimulus funding ceases. This will be an ongoing exercise and trying to establish as much information now that will support Council and provide feedback to Taumata Arowai. Legislation has been written but the practical implications on delivering those is perhaps something that can be influenced through this work. · Funding is specifically to assist to water suppliers to engage with Council. No additional funding has been received to cover the cost of administering the fund, it is expected that Council officers will carry out this function. · Additional funding has been made available for this project and some support has been engaged externally to assist in the assessment in the spatial picture. Funding of $600,000 has been received regionally for the project itself. · It was agreed that this was another additional burden internally for resourcing with regards to the overarching 3 waters reform of which Council is not receiving any support or financial funding for. |
|
Committee's recommendation Councillors Simpson / Mawson The Future Napier Committee: a. Adopt the Private Drinking water Supply Fund Policy. b. Note the detail within the Private Drinking Water Supply Fund including the delegations for approving access to the fund, the eligibility criteria and the application process. c. That a DECISION OF COUNCIL is required so that the contestable fund can open by 1 December 2021. This will require the following resolution to be passed before the decision of Council is taken:
That, in terms of Section 82 (3) of the Local Government Act 2002, the principles set out in that section have been observed in such manner that the Napier City Council considers, in its discretion, it is appropriate to make decisions on the recommendation. Carried |
|
Council Resolution Councillors Mawson / Tapine a. Adopt the Private Drinking water Supply Fund Policy. b. Note the detail within the Private Drinking Water Supply Fund including the delegations for approving access to the fund, the eligibility criteria and the application process.
Carried |
PUBLIC EXCLUDED ITEMS
|
Councillors Mawson / Chrystal That the public be excluded from the following parts of the proceedings of this meeting, namely: 1. Proposal for Development of 398 Prebensen Drive for Housing Carried |
The general subject of each matter to be considered while the public was excluded, the reasons for passing this resolution in relation to each matter, and the specific grounds under Section 48(1) of the Local Government Official Information and Meetings Act 1987 for the passing of this resolution were as follows:
|
General subject of each matter to be considered. |
Reason for passing this resolution in relation to each matter. |
Ground(s) under section 48(1) to the passing of this resolution. |
|
1. Proposal for Development of 398 Prebensen Drive for Housing |
7(2)(h) Enable the local authority to carry out, without prejudice or disadvantage, commercial activities |
48(1)A That the public conduct
of the whole or the relevant part of the proceedings of the meeting would be
likely to result in the disclosure of information for which good reason for
withholding would exist: |
The Meeting adjourned at 2.02pm and reconvened
in the Public Excluded session at 2.06pm
The meeting closed at 2.55pm
|
Approved and adopted as a true and accurate record of the meeting.
Chairperson .........................................................................................................................
Date of approval .................................................................................................................. |